The Driftwood House Design
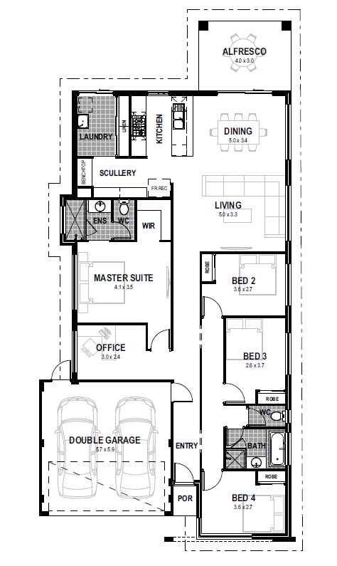
Welcome to the Driftwood House Design by B1 Homes, the ultimate open space haven for young families and first-home buyers! This stunning home has been designed with you in mind and is perfect for blocks with a frontage of 12.5 meters.
The Driftwood features 4 bedrooms, 2 bathrooms, and a double-car garage. The private master bedroom is located in the middle of the home next to the home office, and boasts a spacious walk-in-robe, while the remaining bedrooms are located at the front of the home. The open space design connects the dining and living area, making it perfect for entertaining guests or simply spending time with family.
The kitchen is location uniquely at the back of the home, featuring a spacious island bench that looks over the living area. The scullery connects to the laundry room, making household tasks a breeze. The home office is located at the front of the home, providing a peaceful workspace away from the main living areas.
But that’s not all – the Driftwood also features an alfresco area, perfect for outdoor entertaining or enjoying a meal with your family. We understand that purchasing your first home is an important milestone, and the Driftwood is designed to make that dream a reality.
So why wait? Come and experience the Driftwood for yourself and see why it’s the perfect home for you. Contact us today for more information!
Specifications
✔️ Choice of 3 x Designer Elevations** with Two Tone Acrylic Render
✔️28c Ceilings throughout (Excluding Alfresco, Garage & Porch)
✔️Vinyl Slider to Linen+
✔️ Soft Close Drawers and Cupboards
✔️Overhang on Island Bench
✔️Inalto 600mm Rangehood
✔️Inalto 600mm Cooktop
✔️Inalto 600mm 5 Function Oven
✔️5 Year Warranty on InaIto Kitchen Appliances
✔️Dishwasher Recess
✔️Choice of 75mm Cove, Aria or Symphony cornice throughout
✔️Semi Frameless Glass Shower Screen to Bathrooms and Ensuite
✔️Sectional Garage Door with 2 Remotes
✔️Paved Alfresco & Porch with Steel Posts +
*Where Applicable. **All pictures for illustration purposes
✔️ Painted metal internal door frames
✔️Painted flush panel internal doors
✔️Privacy latches to ensuite, bathroom & WC
✔️Robes with shelf and rail to bedrooms
✔️Choice of Formica laminated benchtop to Scullery+, Ensuite & Bathroom
✔️Bank of 4 drawers to kitchen
✔️4 x Lined shelves to Linen & Pantry+
✔️Dual Flush Toilet with China Cistern
✔️Choice of chrome mixers throughout
✔️1520mm bath to bathroom+
✔️Up to 2m high tiling to shower recesses
✔️Frameless mirrors to ensuite & bathroom
✔️Floor tiling to laundry, bathrooms & WC
✔️Flumed exhaust fans to bathrooms & WC
✔️Hard plaster (White set) to internal walls
✔️Full paint finish excluding Internal Walls
✔️R4 insulation batts to home and garage~
✔️Double power points throughout
✔️2 Hardwired smoke detectors
✔️1 TV Point (Digital RG6)
✔️1 Data Point/Phone Point
*Where Applicable. **All pictures for illustration purposes
✔️Double clay brick construction
✔️2 course face brick
✔️Colorbond metal roof
✔️Colorbond gutters and fascia
✔️Solid Coritech feature front entry door
✔️Weather draft seals to front entry door
✔️Deadlock to front entry door & garage
✔️2Sc Ceilings to Alfresco, Porch & Garage
✔️Treated roof timbers (Blue Pine)
✔️External lights to porch and alfresco
✔️2 x External taps
✔️Instantaneous gas HWU
✔️Up to 6m paved drive and pathway+
✔️Powder coat aluminium windows & sliders
✔️Flyscreens to all window frames & sliding doors
✔️5mm Glass throughout
✔️2S Degree roof pitch
✔️Termite treatment to perimeter
*Where Applicable. **All pictures for illustration purposes
✔️BCA Compliant
✔️HIA Fixed price contract
✔️Full working drawings
✔️Full indemnity insurance
✔️NBN Conduits
✔️Lifetime structuraI guarantee
*Where Applicable. **All pictures for illustration purposes




