The Riviera Home Design
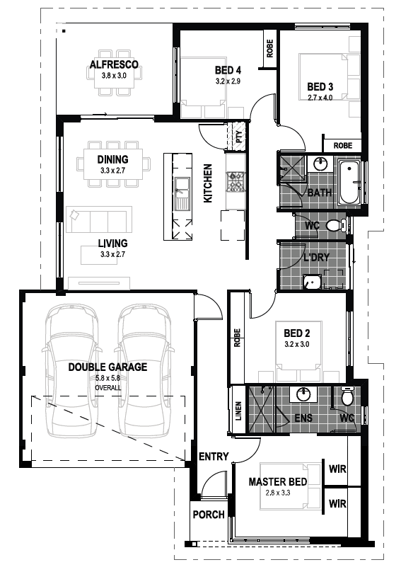
Welcome to The Riviera – a stunning home designed by B1 Homes, perfect for first-home buyers and young families. This beautiful home is designed for blocks with a frontage of 12.5 meters and boasts 4 spacious bedrooms, 2 modern bathrooms, and a double car garage.
The Riviera’s modern design is evident from the moment you walk through the door. The open space dining and living area seamlessly opens up to the courtyard, making it the perfect place to entertain guests or simply relax with your family. The remaining bedrooms and bathrooms are tucked through a corridor, offering privacy and a peaceful retreat.
The master bedroom, located at the front of the house, is the ultimate oasis. It features a generous ensuite and dressing room, providing ample storage and a luxurious space to relax and unwind.
The kitchen is the heart of any home, and the Riviera’s kitchen is sure to impress. With an island bench, it’s perfect for cooking up a storm or simply enjoying a quick meal with your family.
At B1 Homes, we understand that purchasing your first home is an important milestone, which is why we’ve designed The Riviera with your needs in mind. We’re committed to making your dream a reality, and we promise that you won’t be disappointed with The Riviera.
For more information about this stunning home or to book an appointment, contact us today. Let us help you make your dream of owning your first home a reality with The Riviera.
Specifications
✔️ Choice of 3 x Designer Elevations** with Two Tone Acrylic Render
✔️28c Ceilings throughout (Excluding Alfresco, Garage & Porch)
✔️Vinyl Slider to Linen+
✔️ Soft Close Drawers and Cupboards
✔️Overhang on Island Bench
✔️Inalto 600mm Rangehood
✔️Inalto 600mm Cooktop
✔️Inalto 600mm 5 Function Oven
✔️5 Year Warranty on InaIto Kitchen Appliances
✔️Dishwasher Recess
✔️Choice of 75mm Cove, Aria or Symphony cornice throughout
✔️Semi Frameless Glass Shower Screen to Bathrooms and Ensuite
✔️Sectional Garage Door with 2 Remotes
✔️Paved Alfresco & Porch with Steel Posts +
*Where Applicable. **All pictures for illustration purposes
✔️ Painted metal internal door frames
✔️Painted flush panel internal doors
✔️Privacy latches to ensuite, bathroom & WC
✔️Robes with shelf and rail to bedrooms
✔️Choice of Formica laminated benchtop to Scullery+, Ensuite & Bathroom
✔️Bank of 4 drawers to kitchen
✔️4 x Lined shelves to Linen & Pantry+
✔️Dual Flush Toilet with China Cistern
✔️Choice of chrome mixers throughout
✔️1520mm bath to bathroom+
✔️Up to 2m high tiling to shower recesses
✔️Frameless mirrors to ensuite & bathroom
✔️Floor tiling to laundry, bathrooms & WC
✔️Flumed exhaust fans to bathrooms & WC
✔️Hard plaster (White set) to internal walls
✔️Full paint finish excluding Internal Walls
✔️R4 insulation batts to home and garage~
✔️Double power points throughout
✔️2 Hardwired smoke detectors
✔️1 TV Point (Digital RG6)
✔️1 Data Point/Phone Point
*Where Applicable. **All pictures for illustration purposes
✔️Double clay brick construction
✔️2 course face brick
✔️Colorbond metal roof
✔️Colorbond gutters and fascia
✔️Solid Coritech feature front entry door
✔️Weather draft seals to front entry door
✔️Deadlock to front entry door & garage
✔️2Sc Ceilings to Alfresco, Porch & Garage
✔️Treated roof timbers (Blue Pine)
✔️External lights to porch and alfresco
✔️2 x External taps
✔️Instantaneous gas HWU
✔️Up to 6m paved drive and pathway+
✔️Powder coat aluminium windows & sliders
✔️Flyscreens to all window frames & sliding doors
✔️5mm Glass throughout
✔️2S Degree roof pitch
✔️Termite treatment to perimeter
*Where Applicable. **All pictures for illustration purposes
✔️BCA Compliant
✔️HIA Fixed price contract
✔️Full working drawings
✔️Full indemnity insurance
✔️NBN Conduits
✔️Lifetime structuraI guarantee
*Where Applicable. **All pictures for illustration purposes




